We Transform Your Vision into Reality

Specializing in ADUs, Remodels, Additions and Custom New Construction Projects.

Learn more
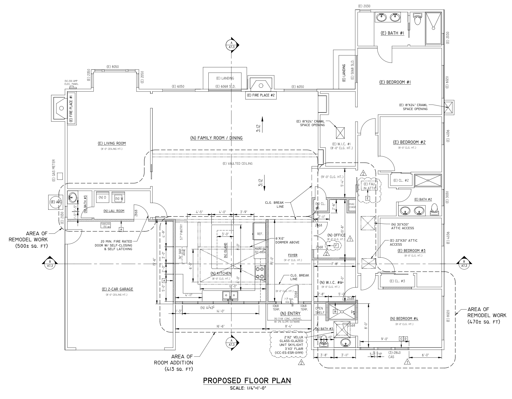
Detailed architectural floor plan of a house showing various rooms, including bedrooms, bathrooms, kitchen, living room, family room, garage, and other areas with measurements, labels, and structural details.